Class A Diesel Motorhomes For Sale in California, Florida, and Alabama
The class A diesel motorhome provides you with an all-in-one RVing experience in a truly luxury-focused form. Class A diesel motorhomes are solid and come with all of the bells and whistles to make any road trip that you have on the books into a luxury affair! You won’t believe how much versatility you will get in a class A! These beauties live up to their name as the gold-standard in the RVing industry. If this sounds like the kind of RV that you are in the market for, you can check out our complete inventory of class A motorhomes diesel for sale in the listing below. Or, if you have any questions, you can contact us today for all of the details. No matter what kind of RV you are in the market for, you can find some amazing options at RVing Planet, your top class A diesel motorhome dealer in California, Florida, and Alabama.
Motor Home Class A - Diesel
-
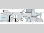
Tiffin Motorhomes Allegro RED Motor Home Class A - Diesel 33 AA
Theater Seating, Fireplace, 35 ft 2 in in length, sleeps up to 5, , many colors ...more
Quad slide-outs; Freightliner rear-engine chassis; king bed suite -
Tiffin Motorhomes Allegro RED Motor Home Class A - Diesel 33 AA
Bunk Over Cab, Outdoor Entertainment, 35 ft 2 in in length, sleeps up to 5, , many colors ...more
The 2026 Tiffin Allegro RED 33AA delivers diesel power, luxury comfort, and Tiffin craftsmanship in a perfectly sized Class A that’s ready to turn every trip into a first-class adventure. -
Tiffin Motorhomes Allegro RED Motor Home Class A - Diesel 33 AA
Bunk Over Cab, Outdoor Entertainment, 35 ft 2 in in length, sleeps up to 5, , many colors ...more
Private master suite; Freightliner chassis; quad slide-outs -
Tiffin Motorhomes Allegro RED Motor Home Class A - Diesel 33 AA
Theater Seating, Fireplace, 35 ft 2 in in length, sleeps up to 5, , many colors ...more
Massive Class A Value — call or text 478-956-6111 right now — Solar Panels, Lift TV, RoadWatch safety tech. -
Tiffin Motorhomes Allegro RED Motor Home Class A - Diesel 33 AA
Fireplace, Front Entertainment, 35 ft 2 in in length, sleeps up to 5, , many colors ...more
Experience ultimate luxury and convenience with the Tiffin Allegro RED Class A diesel motorhome, featuring Hydronic Heating w/ Elex. Appl. and Extended Cycle Batteries, plus more! -
Tiffin Motorhomes Allegro RED Motor Home Class A - Diesel 37 BA
Bunk Over Cab, Bath and a Half, 38 ft 6 in in length, sleeps up to 7, , many colors ...more
(2) HP 15,000 A/C w/Heat Pump, Prep for Satellite Internet -
Tiffin Motorhomes Allegro RED Motor Home Class A - Diesel 37 BA
Bunk Over Cab, Bath and a Half, 38 ft 6 in in length, sleeps up to 7, , many colors ...more
Luxury Diesel Deal You Don’t Want To Miss! Call Or Text 865-933-7213 Today To Secure Your Pricing! | FEATURES INCLUDE: Bath and A Half • King Bed Suite • Exterior TV -
Tiffin Motorhomes Allegro RED Motor Home Class A - Diesel 37 BA
Bunk Over Cab, Bath and a Half, 38 ft 6 in in length, sleeps up to 7, , many colors ...more
This diesel-pusher features a spacious bath-and-a-half floorplan, a private master suite with a king bed, and a full-wall slide that maximizes your interior living space. -
Tiffin Motorhomes Allegro RED Motor Home Class A - Diesel 37 BA
Bunk Over Cab, Bath and a Half, 38 ft 6 in in length, sleeps up to 7, , many colors ...more
Ultimate comfort and craftsmanship on the road. -
Tiffin Motorhomes Allegro RED Motor Home Class A - Diesel 37 BA
Bunk Over Cab, Bath and a Half, 38 ft 6 in in length, sleeps up to 7, , many colors ...more
Full wall slide; master suite; sofa bed -
Tiffin Motorhomes Allegro RED Motor Home Class A - Diesel 37 BA
Bunk Over Cab, Bath and a Half, 38 ft 6 in in length, sleeps up to 7, , many colors ...more
Massive Motorhome Value - call or text 478-956-6111 today — heated tile floors, theatre seating, king suite. -
Tiffin Motorhomes Allegro RED Motor Home Class A - Diesel 38 KA
Bunk Over Cab, Bunkhouse, 39 ft 6 in in length, sleeps up to 7, , many colors ...more
.
Manufacturer and/or stock photographs may be used and may not be representative of the particular unit being viewed. Where an image has a stock image indicator, please confirm specific unit details with your dealer representative.
