Used 2023 Coachmen RV Apex Nano 208BHS Travel Trailer
Front Queen Bed, Double Bunks, Booth Dinette Slide, Rear Bath, 2 Burner Cooktop - Campers Inn RV of Louisville 812-282-7718
Discover the Coachmen Apex Nano 208BHS Travel Trailer
Looking for a lightweight travel trailer that packs a punch in features, comfort, and versatility? The Coachmen Apex Nano 208BHS is your perfect camping companion. Available now at Campers Inn RV of Louisville, this family-friendly unit is designed to make every trip easy, fun, and unforgettable.
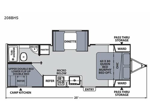
Top Features of the Apex Nano 208BHS
-
Spacious front queen bed with dual wardrobes
-
Rear corner double-over-double bunks with a flip-up lower bed
-
Booth dinette slide-out for extra living space
-
Rear bathroom with tub and shower
-
Convenient outdoor camp kitchen
-
Large pass-through storage for all your gear
Start your mornings with a hot breakfast using the two burner cooktop or microwave, then gather around the dinette for meals, games, or planning your next adventure. With plenty of sleeping space for up to six campers, this model is perfect for families or friends who love the outdoors. The optional Murphy bed adds even more versatility to your living area.
Built with durability in mind, the Apex Nano features lightweight yet strong aluma-cage construction, vacuum-bonded Azdel sidewalls, a corrosion-resistant powder coated frame, and a roof membrane designed to withstand the elements. Towing is smooth and stable with Dexter E-Z lube axles and nitrogen-filled radial tires.
Enjoy must-have conveniences like magnetic baggage doors, outside speakers, a WiFi-ready digital TV antenna, and an exterior hot and cold shower. Whether youre heading to the mountains or the lake, this trailer is ready to take you there in comfort and style.
Why Shop at Campers Inn RV of Louisville?
At Campers Inn RV of Louisville, we make your RV buying experience simple, exciting, and hassle-free. Our team is dedicated to helping you find the perfect RV for your adventures at the best value possible. Visit us today to explore the Coachmen Apex Nano 208BHS and see why so many families trust us to get them on the road.
STOCK IMAGES, COLORS & STYLES MAY VARY
Excellent experience. We arrived and Cory was waiting for us in the parking lot. He had the Alpha already set up for us to look at but was also willing to show us anything else we wanted to see. He was laid back and friendly and not pushy in any way. Everyone was super friendly. The store was cute and cozy and had a real nice family feel. It felt like the kind of place you'd like to work yourself - Christina
You Save: $10,000
Sale Price: $19,995
Stock# 108172X
Interior Color: EARTH
| Sleeps | 7 |
| Slides | 1 |
| Length | 25 ft |
| Ext Width | 7 ft 6 in |
| Ext Height | 10 ft |
| Interior Color | EARTH |
| Hitch Weight | 516 lbs |
| GVWR | 6000 lbs |
| Dry Weight | 3948 lbs |
| Cargo Capacity | 2052 lbs |
| Fresh Water Capacity | 50 gals |
| Grey Water Capacity | 35 gals |
| Black Water Capacity | 35 gals |
| Number Of Bunks | 2 |
| Available Beds | Queen |
| Refrigerator Type | Double Door |
| Refrigerator Size | 6 cu ft |
| Cooktop Burners | 2 |
| Number of Awnings | 1 |
| LP Tank Capacity | 20 lbs |
| Water Heater Capacity | 6 gal |
| Water Heater Type | DSI Gas/Electric |
| AC BTU | 13500 btu |
| Awning Info | 14' Power w/LED Lights |
| Axle Count | 1 |
| Number of LP Tanks | 1 |
| Shower Type | Tub/Shower Combo |
| VIN | 5ZT2CXKBXPL015510 |
Apex Nano 208BHS Reviews
Loading
.
Manufacturer and/or stock photographs may be used and may not be representative of the particular unit being viewed. Where an image has a stock image indicator, please confirm specific unit details with your dealer representative.


