Used 2019 Ice Castle Fish Houses 17 RV Edition Ice House
Ice Castle Fish Houses Standard RV highlights:
- Six Fishing Holes
- LED Package
- Microwave
- 14' Power Awning
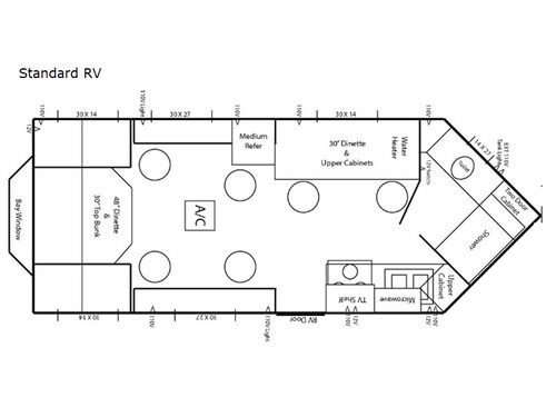
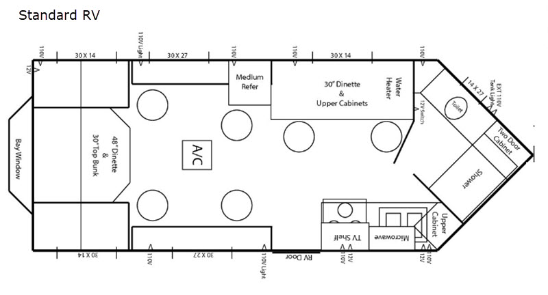
Come camp a little, fish a little, and do a whole lot of relaxing in this Standard RV by Ice Castle Fish Houses. This v-nose model features a front full bath with everything you will need to get ready for your day, a 30" top bunk, and a rear bay window with a cushion where you can comfortably enjoy the scenery. This model also has two dinettes - a 30" dinette across from the kitchen amenities and a 48" dinette along the rear. With six fishing holes you can fish from just about anywhere in this model. What are you waiting for? Come start your next vacation with this Standard RV!
All Ice Castle Fish Houses are built with 2" x 3" walls including 16" studs on center and aluminum tube framing. The exterior features either aluminum or fiberglass siding, a galvalume roof, and thermopane windows. On the inside, you will find 3/4" treated plywood flooring, LED lighting, and plenty of safety features including a smoke detector, LP and CO2 alarms, plus a fire extinguisher. There are also a variety of exterior siding colors to choose from and a variety of options to make any Ice Castle Fish House you choose compliment your fishing and camping style the best.
Maybe it’s me. Where I come from I can’t get help. Maybe it looks like I’m not approachable, Maybe it’s because I am old, fat and ugly. Maybe I’m invisible. But I can be standing in an aisle at Home Depot, Lowe’s, Walmart or any other place of business that is willing to take my money looking for something and have a store clerk pass by me without acknowledging me or asking if they could be of assistance. - Billy
Stock# 478-25A
| Sleeps | 4 |
| Length | 21 ft |
| Ext Width | 8 ft |
| Int Height | 7 ft 6 in |
| GVWR | 7000 lbs |
| Furnace BTU | 30000 btu |
| Number Of Bunks | 1 |
| Cooktop Burners | 3 |
| Number of Awnings | 1 |
| Awning Info | 14' Power |
| Axle Count | 1 |
| Shower Type | Standard |
| VIN | 5TJBE2414KM026031 |
Loading
.
Manufacturer and/or stock photographs may be used and may not be representative of the particular unit being viewed. Where an image has a stock image indicator, please confirm specific unit details with your dealer representative.


