Used 2016 Newmar Canyon Star 3921 Motor Home Class A - Toy Hauler
View all Canyon Star Floorplans
2016 3921 Features and Options
This Newmar Canyon Star class A toy hauler has room for you, your toys, and a few more guests! With a full wall slide, and a second bedroom slide you will find this model 3921 the perfect traveling home!
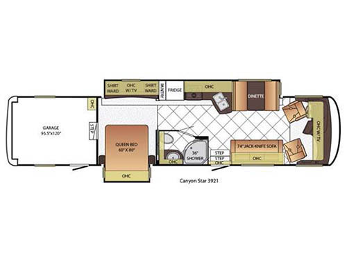
Step inside in the center of the coach and find a wide open feel thanks to a full wall slide along the driver's side. There is a 74" jack-knife sofa to the right of the door behind the passenger seat, and a complete bath on the left side. The bathroom is conveniently located just around the corner from the door so you have quick access from outside, plus the bedroom is right next door too!
Opposite the door side in the full wall slide you will find a booth dinette and the kitchen appliances. There is an angled counter with a double sink, a three burner range, refrigerator, and pantry. You will also find ample overhead storage for your daily dishes.
Notice also up front that you will find storage above the cab area including a nice TV. The captains chairs up front swivel around creating a great conversation area. Plus, when needed the jack-knife sofa and booth dinette can easily be made into sleeping space for family or overnight guests.
Between the main living space and the garage enjoy a spacious bedroom featuring dual slides since the road side full wall slide ends in the bedroom area where you will find in it clothing storage with dual shirt wardrobes, overhead cabinetry, and a wardrobe with TV in the center. Opposite along the curb side find a queen bed slide out including more storage overhead, plus nightstands. A sliding door separates the space from the main living area for added privacy.
A door and step down leads into the rear garage space that is just shy of 8' wide and 10' long. Here you will find ample space to haul a few toys. There is an overhead cabinet, and a side man door for easy access once the rear ramp door is closed, plus so much more.
Step inside in the center of the coach and find a wide open feel thanks to a full wall slide along the driver's side. There is a 74" jack-knife sofa to the right of the door behind the passenger seat, and a complete bath on the left side. The bathroom is conveniently located just around the corner from the door so you have quick access from outside, plus the bedroom is right next door too!
Opposite the door side in the full wall slide you will find a booth dinette and the kitchen appliances. There is an angled counter with a double sink, a three burner range, refrigerator, and pantry. You will also find ample overhead storage for your daily dishes.
Notice also up front that you will find storage above the cab area including a nice TV. The captains chairs up front swivel around creating a great conversation area. Plus, when needed the jack-knife sofa and booth dinette can easily be made into sleeping space for family or overnight guests.
Between the main living space and the garage enjoy a spacious bedroom featuring dual slides since the road side full wall slide ends in the bedroom area where you will find in it clothing storage with dual shirt wardrobes, overhead cabinetry, and a wardrobe with TV in the center. Opposite along the curb side find a queen bed slide out including more storage overhead, plus nightstands. A sliding door separates the space from the main living area for added privacy.
A door and step down leads into the rear garage space that is just shy of 8' wide and 10' long. Here you will find ample space to haul a few toys. There is an overhead cabinet, and a side man door for easy access once the rear ramp door is closed, plus so much more.
There are so many standard features to love, plus much more!
What Our Customers Are Saying
Our propane stopped working while on a trip from Kansas City to Alaska. I stopped at Eastside and they were very helpful. A Tech even took time to help me make sure I did need a new regulator. We were able to make the repair and get back on the road. - Mark
Optimum RV
Location: PA, Philadelphia
Stock# 1CR921
Location: PA, Philadelphia
Stock# 1CR921
Chassis: Ford F-53
Stock# 1CR921
Chassis: Ford F-53
To get help now on this RV, call and enter the RV ID if prompted.
2016 3921 Specifications
| Sleeps | 5 |
| Slides | 2 |
| Length | 39 ft 11 in |
| Ext Width | 8 ft |
| Ext Height | 12 ft 11 in |
| Int Height | 7 ft |
| GVWR | 26000 lbs |
| Dry Weight | 21455 lbs |
| Cargo Capacity | 4545 lbs |
| Fresh Water Capacity | 75 gals |
| Grey Water Capacity | 60 gals |
| Black Water Capacity | 40 gals |
| Furnace BTU | 42000 btu |
| Fuel Type | Gas |
| Engine | 362 HP |
| Chassis | Ford F-53 |
| VIN | 1F66F5DY5G0A11921 |
For more information
Contact Us
Canyon Star 3921 Reviews
Be the first to tell other RVers what you think about this RV Write a Review
Similar RVs and Floorplans
View all
Two Entry/Exit Doors Floorplans
Loading
.
Manufacturer and/or stock photographs may be used and may not be representative of the particular unit being viewed. Where an image has a stock image indicator, please confirm specific unit details with your dealer representative.


