Used 2016 Forest River RV R Pod RP-176 Travel Trailer
View all R Pod Floorplans
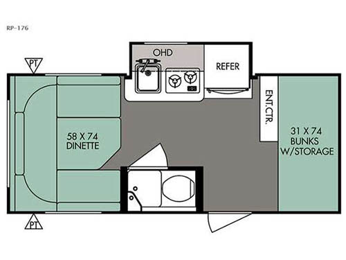
2016 RP-176 Features and Options
The RP-176 R-Pod travel trailer by Forest River, offers a bunk beds with storage and a U-shaped dinette.
To the left of the entrance you will find a bathroom with a toilet and a shower.
Along the rear wall there is a U-shaped dinette.
The slide has a single sink, two burner range, and refrigerator. Next to the slide is an entertainment center.
In the front of the trailer there is a set of bunk beds with storage, plus more!
What Our Customers Are Saying
Anne was an excellent salesperson. She took her time to show us and help us over several months. Always gracious and considerate until we made a decision. We got a fair trade and a great deal.
Much in contrast to an unnamed out of town place where we were under intense pressure to buy the moment we stepped inside.
The rest of the staff were equally helpful. Financing was easy and straightforward. - Joe
Central Washington RV
Location: Yakima, WA
Stock# 3136A
Location: Yakima, WA
Stock# 3136A
Stock# 3136A
To get help now on this RV, call and enter the RV ID if prompted.
2016 RP-176 Specifications
| Sleeps | 4 |
| Slides | 1 |
| Length | 20 ft |
| Ext Width | 8 ft |
| Ext Height | 9 ft 7 in |
| Int Height | 6 ft 6 in |
| Hitch Weight | 286 lbs |
| Dry Weight | 2564 lbs |
| Cargo Capacity | 1222 lbs |
| Fresh Water Capacity | 36 gals |
| Grey Water Capacity | 30 gals |
| Black Water Capacity | 30 gals |
| Tire Size | 205/75/R14 |
| Furnace BTU | 20000 btu |
| VIN | 4X4TRPT14G2009650 |
For more information
Contact Us
R Pod RP-176 Reviews
Be the first to tell other RVers what you think about this RV Write a Review
Similar RVs and Floorplans
Loading
.
Manufacturer and/or stock photographs may be used and may not be representative of the particular unit being viewed. Where an image has a stock image indicator, please confirm specific unit details with your dealer representative.


