Used 2015 Winnebago Forza 36G Motor Home Class A - Diesel
View all Forza Floorplans
2015 36G Features and Options
This Forza class a diesel coach offers everything you need to enjoy any road trip you happen upon! This unit features triple slide and sleeping for five.
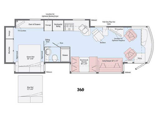
Enter model 36G in front of the passenger seat. Looking back you will see a spacious interior with slide out sofa sleeper and Benchmark dinette on your left. Notice the seat belts which are great for rear travelers. Opposite you will find a recliner with pull-out flip-out table, and a corner for the 48" HDTV.
Heading further back you will come to the kitchen and bath area. The kitchen begins at the head of the driver's side slide out with an angled double sink, a three burner range, a residential refrigerator, and storage cabinet that is also the location of the washer and dryer if you wish to add that convenience. Here you will have no problem creating meals and snacks while on the move.
The complete bath is also centrally located and provides a tub/shower, toilet, and vanity with sink, plus overhead storage.
The rear master bedroom features a queen bed slide including nightstands and overhead storage. The dresser opposite is part of that large slide on the road side that also features the kitchen appliances. Here you will enjoy storage drawers for your things, plus there is a 40" HDTV as well. Along the rear wall find even more storage with a wardrobe and cabinet.
Enter model 36G in front of the passenger seat. Looking back you will see a spacious interior with slide out sofa sleeper and Benchmark dinette on your left. Notice the seat belts which are great for rear travelers. Opposite you will find a recliner with pull-out flip-out table, and a corner for the 48" HDTV.
Heading further back you will come to the kitchen and bath area. The kitchen begins at the head of the driver's side slide out with an angled double sink, a three burner range, a residential refrigerator, and storage cabinet that is also the location of the washer and dryer if you wish to add that convenience. Here you will have no problem creating meals and snacks while on the move.
The complete bath is also centrally located and provides a tub/shower, toilet, and vanity with sink, plus overhead storage.
The rear master bedroom features a queen bed slide including nightstands and overhead storage. The dresser opposite is part of that large slide on the road side that also features the kitchen appliances. Here you will enjoy storage drawers for your things, plus there is a 40" HDTV as well. Along the rear wall find even more storage with a wardrobe and cabinet.
What Our Customers Are Saying
Thank you, Sharon, for the outstanding service at Summerland RV. Its people like you that makes all the difference in the RV Industry. I called you as a Winnebago Dealership, you listened to what I needed, ordered the parts, and did not give me the traditional run around. I truly appreciated the leadership, sincerity in you organizing everything for me to come in to have the parts installed in a timely - Wallace
Price:
$154,990
Western RV Country
Location: Okotoks (Aldersyde)
Stock# C2549
Location: Okotoks (Aldersyde)
Stock# C2549
Chassis: Freightliner XCS
Stock# C2549
Chassis: Freightliner XCS
To get help now on this RV, call and enter the RV ID if prompted.
2015 36G Specifications
| Sleeps | 5 |
| Slides | 3 |
| Ext Width | 8 ft 6 in |
| Ext Height | 11 ft 11 in |
| Int Height | 6 ft 8 in |
| Hitch Weight | 5000 lbs |
| GVWR | 27910 lbs |
| Fresh Water Capacity | 84 gals |
| Grey Water Capacity | 54 gals |
| Black Water Capacity | 48 gals |
| Furnace BTU | 40000 btu |
| Fuel Type | Diesel |
| Miles | 1 |
| Engine | Cummins ISB 340 Hp |
| Chassis | Freightliner XCS |
| VIN | 4UZACJDT7FCHA8611 |
For more information
Contact Us
Forza 36G Reviews
Be the first to tell other RVers what you think about this RV Write a Review
Similar RVs and Floorplans
View all
Rear Bedroom Floorplans
Loading
.
Manufacturer and/or stock photographs may be used and may not be representative of the particular unit being viewed. Where an image has a stock image indicator, please confirm specific unit details with your dealer representative.


